La description
-
La description:
Sérénitis, l'offre locative abordable dédiée aux séniors : logements adaptés, résidences inclusives, services
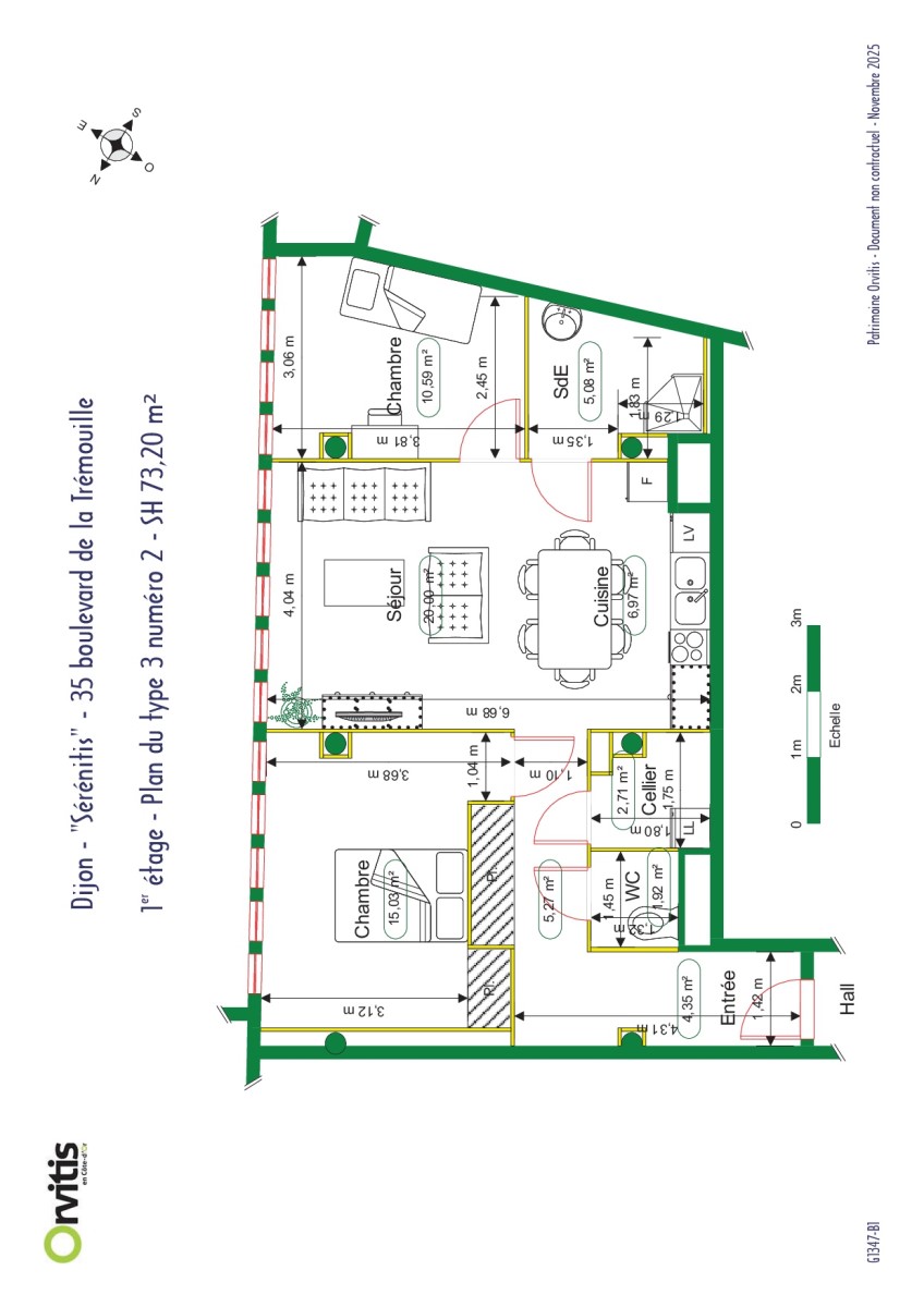
Appartement de type 3 situé au 31 boulevard de la Trémouille à DIJON
Situé dans une petite résidence avec ascenseur construite et accès sécurisé.
Superficie de 73 m², salon séjour avec cuisine équipée ouverte, deux chambres dont une avec placard et d'une salle d'eau. WC séparés.
Volets roulant électriques, jardin partagé, ascenseur, accès sécurisé par badge.
Chauffage collectif urbain, eau consommation réelle en télérelève.
Proche des commodités et des transports en communs (bus et TRAM), au coeur du centre ville.
Informations
- Typologie: Appartement
- Surface: 73 m²
- Nombre de pièce(s): 3
-
shortcode_DPE_CONSO:
Classe énergie
ABCDEFGLogement à consommation énergétique excessive
-
shortcode_DPE_GAZ:
GES
ABCDEFGLogement à consommation énergétique excessive
- Étage: 01
- Type de chauffage: individuel
- Énergie de chauffage: NC
- Département: 21
- Distribution eau chaude: NC
- Loyer: 798 €
- Charges locatives: 192 €
- Loyer total (Charges comprises): 990 €
- Ascenseur: Oui
- Dépôt de garantie: 798 €
- Référence: 01347000010000100002
